ArtHubs is now leasing a new artist studio opportunity at Wychwood Barns!

THE OPPORTUNITY
Situated in the heart of St. Clair West, the new artist studios at Wychwood Barns offer a dedicated space for artists to create, experiment, and grow in a heritage site with deep cultural resonance.
Home to 26 live/work studios, 15 private work studios, 9 non-profit arts and environmental organizations, and a 7,680 sq. ft. event venue, Wychwood Barns has been a centre of cultural and communal activity for over 15 years.
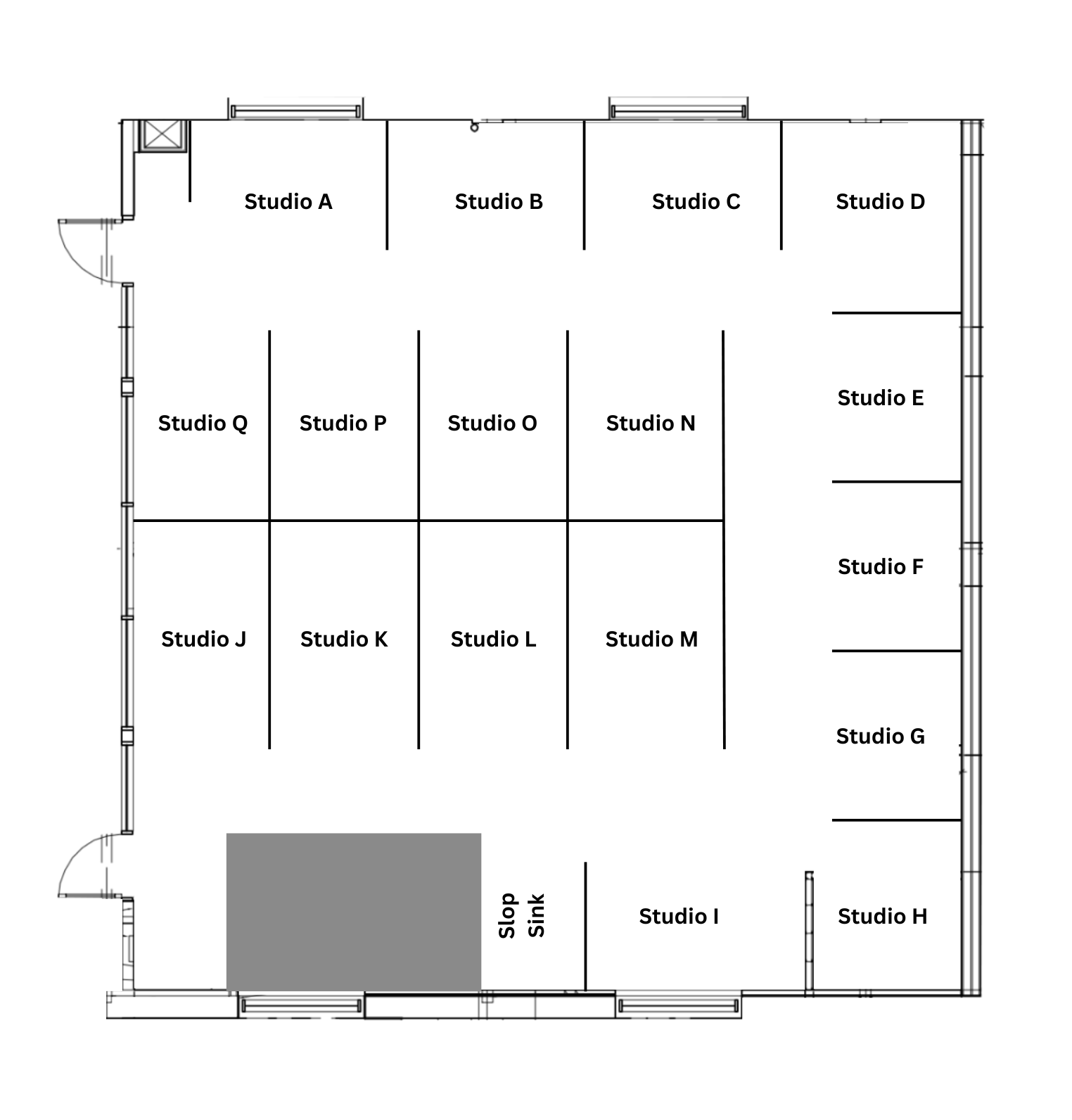
The new studios are located on the second floor of the building, which overlook the vibrant Covered Street Barn and a lush courtyard garden. This open-concept creative space features 17 individual studios with partitioned walls, offering both privacy and flexibility to make the space truly your own.
Become a part of a dynamic community featuring theatre, music, visual arts, environmental initiatives, and urban agriculture while creating opportunities for collaboration, dialogue, and exchange.
STUDIO DETAILS:
Location: Wychwood Barns, 2nd Floor, 601 Christie Street
Area: 17 studios ranging approximately from 50 - 90 square feet in a shared space
Occupancy Date: Available November 1, 2025
Monthly Cost: $350 - $500 range varies by size
STUDIO RENTAL INCLUDES:
- Dedicated workspace within a large open concept unit on the 2nd floor of the building
- 24/7 studio/building access
- Utilities and Wi-fi
- Access to slop sink and washing area
- Power
- Common Area maintenance
- Access to the Hallway Galleries Program, ArtHubs Markets and Community

ELIGIBILITY & SELECTION PROCESS
Studios are available to practicing professional artists, with an up-to-date artist CV. Artistic practice with low or no ambient sound production and non-toxic or fume producing materials is preferred.
Artists will be selected on a first come first served basis once artist eligibility and studio fit has been confirmed. Please include an artist CV and description of your practice upon expressing interest in a studio space.
HOW TO APPLY
Contact leasing@arthubs.ca to secure your spot today! For more details about the artist studios, visit wychwoodbarns.ca/whos-here
OPEN STUDIOS
Want to see the space in person? Come to our Open Studios on:
- Saturday October 18 10:30AM – 12:30PM
- Wednesday October 22 12PM – 2PM
For additional information or questions, please contact:
leasing@arthubs.ca
Recent Posts










